HEWLETT-PACKARD COMPANY
COLORADO 5GB INTERNAL, HP C4354B
|
Device Type |
Internal Tape Drive |
|
Interface |
IDE(AT) |
|
Format |
HP Colorado 5GB, QIC-WIDE |
|
Sustained Transfer Rate |
1.17 MBPS |
|
Size |
3.5 in. half height |
|
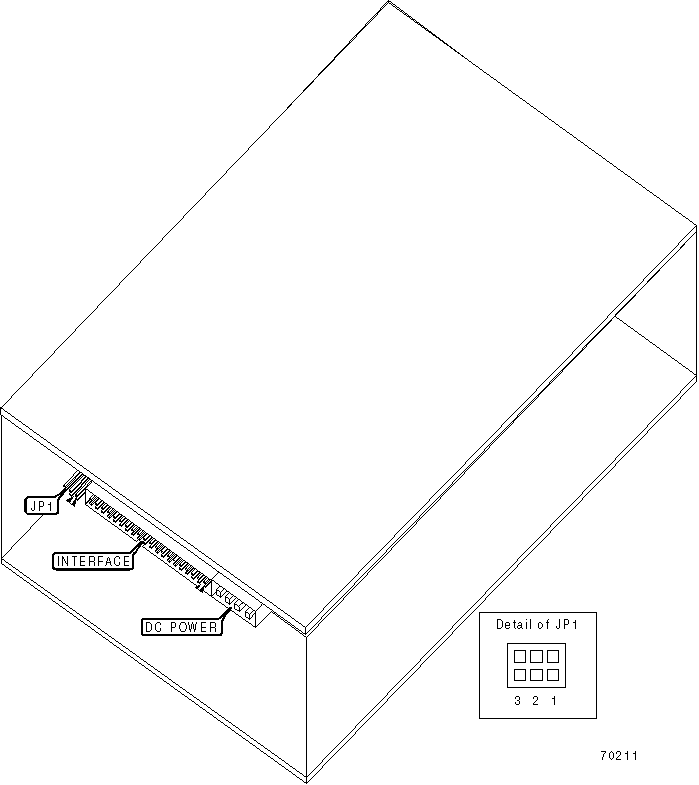
View |
Top |
|
IDE MASTER/SLAVE | |||
|
Setting |
JP1/1 |
JP1/2 |
JP1/3 |
|
Master in two drive system |
Closed |
Open |
Open |
|
Slave in two drive system |
Open |
Closed |
Open |
|
Master/Slave determined by Cable Select |
Open |
Open |
Closed |
|
MANUFACTURERS RECOMMENDED MEDIA | ||
|
Tape |
Capacity Without Compression |
Capacity With Compression |
|
HP Colorado 5GB |
2.5GB |
5GB |